Критерии
Цена
 
Площ
кв.м.
 
кв.м.
Спални
 
Етаж
 
Година на строеж
 
Начин на отопление
Средство за отопление

Апартамент за продажба

София Град, Манастирски ливади

358.000€ | 700.187,14лв

Ароу Естейтс ЕООД

 

 

 

 

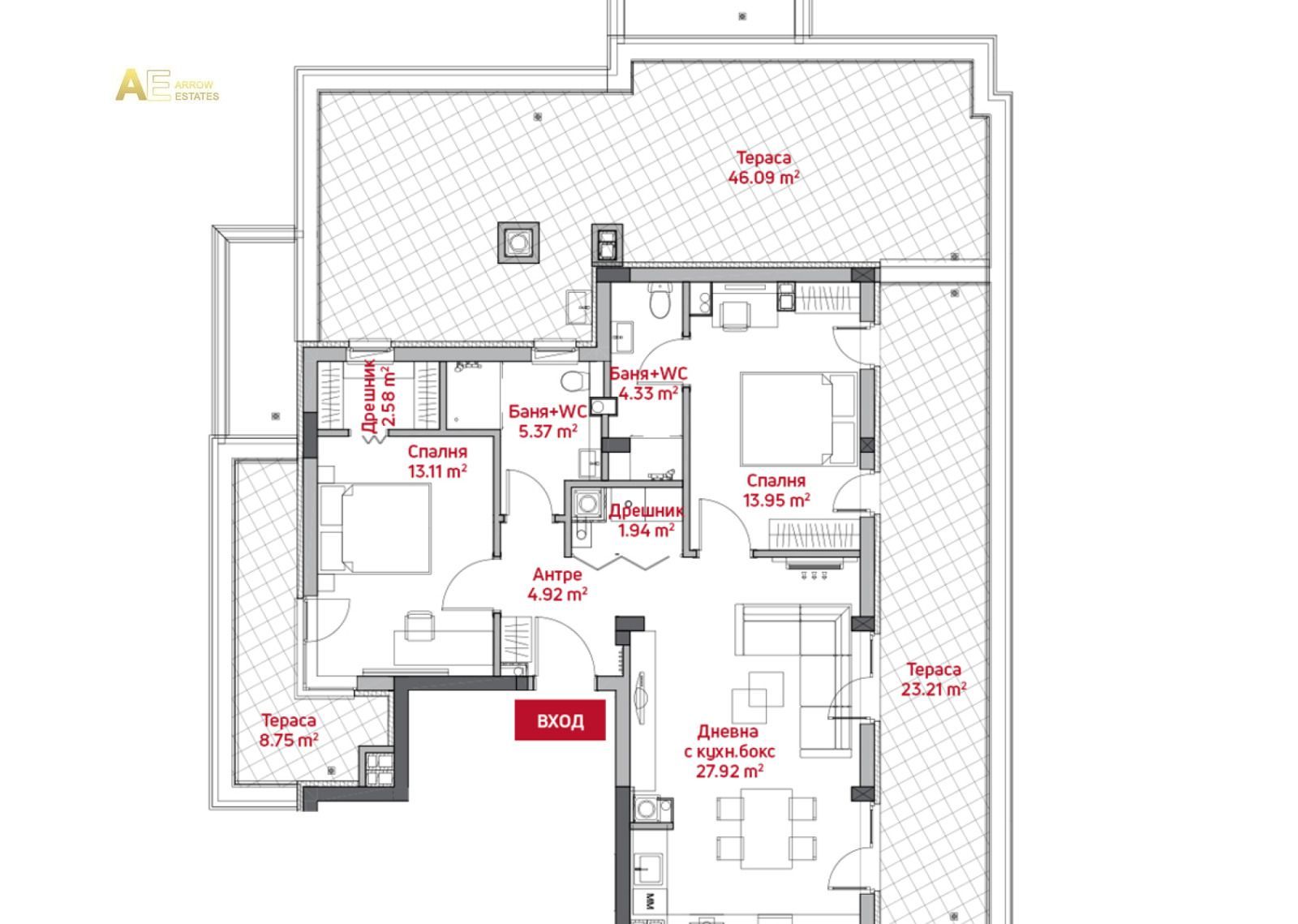
Предлагаме на вашето внимание тристаен апартамент ,разположен в новопостроен жилищен комплекс с акт 14, в Манастирски Ливади - Изток. Имота е със следното разпределение, антре, дневна с кухненски бокс,дрешник и тераса,спалня с баня и тоалетна,както и врата към общата тераса с хола.Втора спалня с дрешник и собствена тераса.Баня с тоалетна и складово помещение/дрешник.Апартамета разполага общо с три тераси с обща площ 78.05 кв.м.Снимките са добавени с илюстративна цел за примерен дизайн.
Възможност за покупка на паркоместа и гаражи.Приложено е разпределение на апартамента.
Предпочитан за живеене квартал ,в близост до идеален център ,мол България,магазин Лидл и Кауфланд.Комуникативно местоположение в близост до градски транспорт,Южен парк ,търговски обекти ,магазини и заведения за хранене в района .Училища и детски градини.Висококачествено изпълнението на сградата и комплекса. Функционални ,просторни и светли жилища.
Доказан инвеститор с богат опит в сферата ,отличен с престижни награди .

ID
17538638
Квадратура
220 кв.м.
Цена на кв.м.
1.627€ | 3.182,67лв
Област
Манастирски ливади (София Град)
Спални
2
Етаж
7-ми
Гараж / Паркомясто
Да
Нива
1
Кухни
1
Дневни
2
Бани
2

Удобства

  • Склад / Хранилище
  • Асансьор
  • Тераса
  • Големина на тераси: 78 кв.м.
  • Вътрешно стълбище
  • Гледка

Share